西宮市深津町 面積127坪 賃貸事務所付倉庫物件 / 駐車場付テナント募集

TEL:06-6776-2517受付9:30〜18:00 マーシック有限会社
2025年12月01日 07時26分 (月)

<< 前のページに戻る

物件コード 11745  -  36074

☆2階建て事務所付倉庫 1階倉庫・2階事務所 前面スペース駐車可
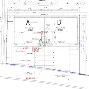
:A室
物件種別 事務所付倉庫  《連棟式》 建物一部
所 在 階   1+2階 A
契約面積 127.05 坪( 420.00㎡)
多層階: 1階:58.98坪 2階:68.06坪
賃料 (税込)
税率 10%
賃料:1,969,000円     共益費込み
保証金:10.0ヶ月     解約引:3ヶ月
特記事項 更新料無し 引渡日:2026年4月上旬
特記事項
●火災保険加入要

物件概要  図面

   
住 所 兵庫県西宮市深津町
交 通 阪急電鉄今津線     阪神国道 駅   徒歩 11 分
阪急電鉄神戸線   西宮北口駅 徒歩10分
区 分 マルチオフィス (規模: 小型 )
構造規模 ALC造  地上 2 階建 
建築年月2017年3月 新耐震
駐車施設 有り  
本体設備   ●流し台:室内専用 (電気温水器) ●洗面台:室内専用●トイレ:男女別   ●空調関係:個別空調 ●セキュリティー:無
使用時間 24時間使用可 日祝日の使用:使用可
道路 一方   東側:7.5m
その他 準工業地域   基準階床:タイルカーペット OAフロア   OA床:高さ5cm
備考1Fフリースペース フォークリフト用電源、電動シャッター 2Fオフィススペース 個別空調、OAフロア、男女別トイレ 駐車スペース有(前面空地) 連棟式2戸1
更新日 2025-11-28  取引態様:仲介

※内覧、諸条件の相談はお気軽ご連絡ください。
ご来店前には必ずご連絡をお願い申し上げます。 電話06-6776-2517 土日祝日定休   

<< 前のページに戻る

おすすめ物件

おすすめ情報

広告掲載募集中

テナント募集掲載物件募集中!
当サイトへの掲載料は無料です。 貸し倉庫 貸し工場 貸し土地 貸しビル 商業物件 事業用物件 賃貸物件 売買物件 仲介物件を募集しております。
物件資料は、FAX 06-6776-2518 又は、メールにて受付ています。 (※ポータプルサイト掲載は有料になります。)

サイト運営会社

マーシック有限会社 仲介管理
〒542-0063
大阪市中央区東平2丁目1番28号
ノバカネイチ上町台103号

TEL:06-6776-2517
受付:9:30-18:00
定休日:土日祝日