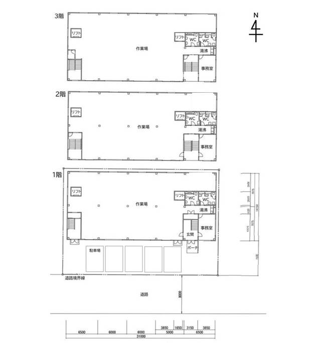
貸室番号   - 22934室内の写真です。

















  マーシック有限会社 Tel 06-6776-2517