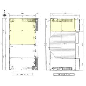
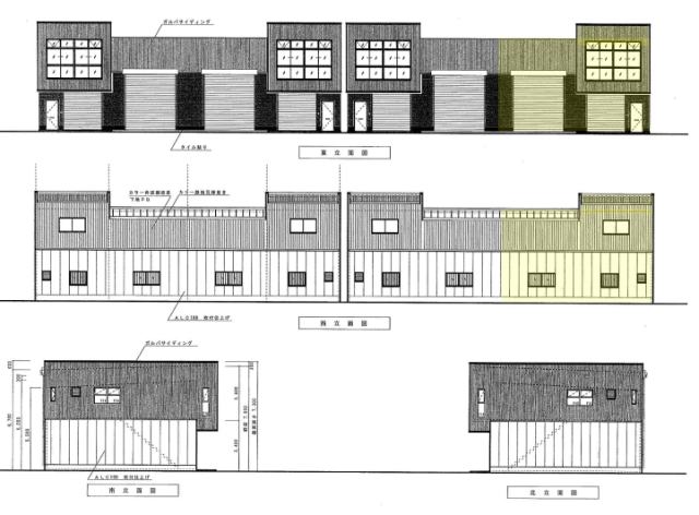
貸室番号   - 31081室内の写真です。





  マーシック有限会社 Tel 06-6776-2517