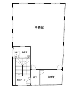
貸室番号   - 32766室内の写真です。








  マーシック有限会社 Tel 06-6776-2517