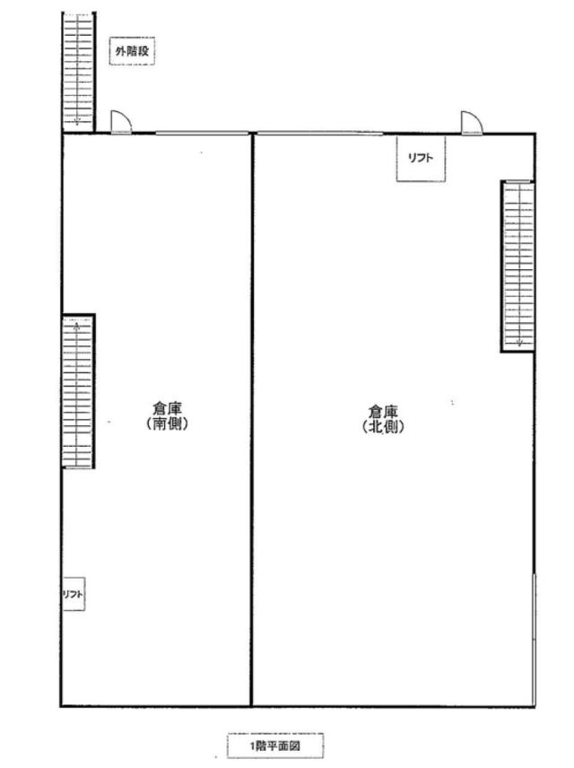
貸室番号   - 34236室内の写真です。








  マーシック有限会社 Tel 06-6776-2517