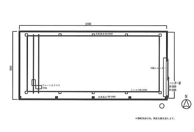
貸室番号   - 36065室内の写真です。









  マーシック有限会社 Tel 06-6776-2517