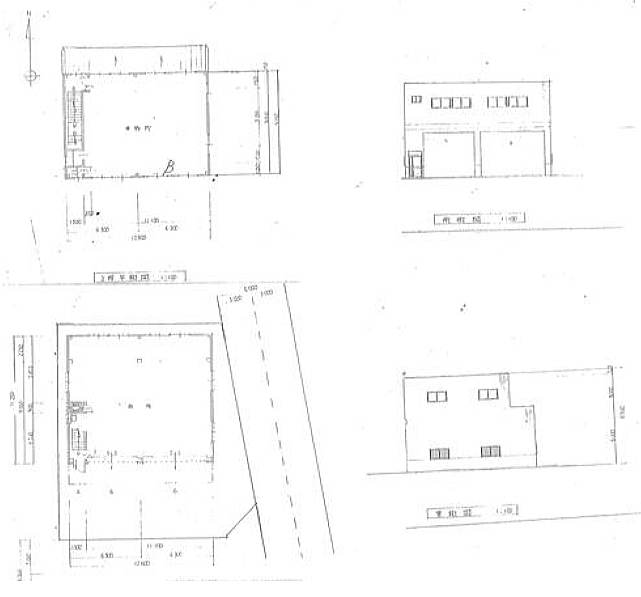
貸室番号   - 36079室内の写真です。











  マーシック有限会社 Tel 06-6776-2517