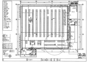
貸室番号   - 36293室内の写真です。







  マーシック有限会社 Tel 06-6776-2517