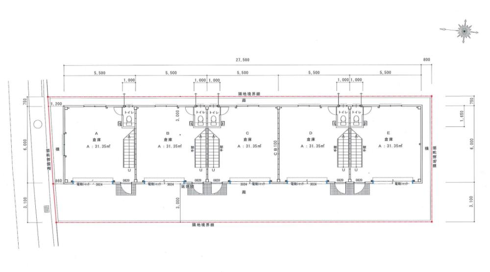
建物番号  [ 11381]  図面関係    




造作等により図面と現状が相違する場合がございます。現況を優先しますのでご了承ください。マーシック有限会社 TEL 06-6776-2517