建物番号  [ 9636]  図面関係    


1??????????

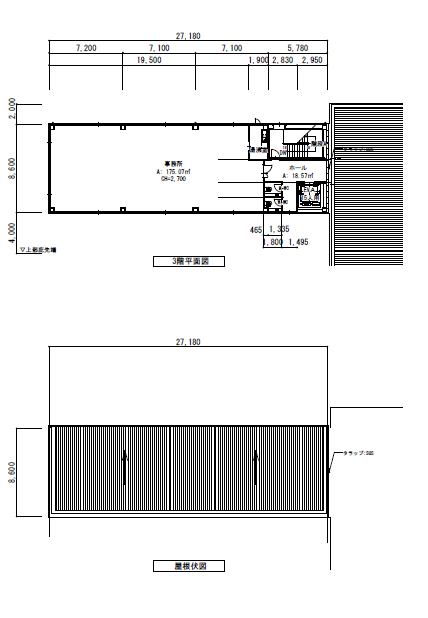
2??????????

?????3??????71.54????214?


造作等により図面と現状が相違する場合がございます。現況を優先しますのでご了承ください。マーシック有限会社 TEL 06-6776-2517