摂津市別府3丁目 面積147坪 賃貸事務所付倉庫物件 / 駐車場付 一棟貸し物件テナント募集

TEL:06-6776-2517受付9:30〜18:00 マーシック有限会社
2026年01月16日 15時02分 (金)

<< 前のページに戻る

物件コード 11704  -  36026

☆鉄骨造ALC版張2階建 入居時期2026年(令和8年)5月1日 軒高5m 接道方向:東側 幅員7.4m
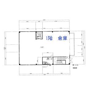
:2階建て事務所付倉庫 1階倉庫・2階事務所 前面駐車スペース付き
物件種別 事務所付倉庫  1棟貸し
所 在 階   1+2階
契約面積 146.56 坪( 484.50㎡)
多層階: 1階:72.81坪 2階:73.75坪
賃料 (税込)
税率 10%
賃料:935,000円     共益費込み
敷金:5.0ヶ月     礼金:2ヶ月
特記事項 更新料無し
現況・引渡日
現況:入居中 引渡日:2026年(令和8年
特記事項
●火災保険加入要

物件概要  写真B

   
住 所 大阪府摂津市別府3丁目
交 通 地下鉄今里筋線     井高野 駅   徒歩 6 分
区 分 事務所兼倉庫 (規模: 中型 )
構造規模 ALC造  地上 2 階建 
建築年月1997年9月 新耐震
駐車施設 有り  
本体設備   ●流し台:室内専用 ●洗面台:室内専用●トイレ:室内男女別   ●セキュリティー:無
使用時間 24時間使用可 日祝日の使用:使用可
道路 一方   東側 幅員7.4m
その他 第一種住居地域    
リニュアル2023年(令和5年)に外壁及び屋根改修工事済
更新日 2026-01-16  取引態様:仲介

※内覧、諸条件の相談はお気軽ご連絡ください。
ご来店前には必ずご連絡をお願い申し上げます。 電話06-6776-2517 土日祝日定休   

<< 前のページに戻る

おすすめ物件

おすすめ情報

広告掲載募集中

テナント募集掲載物件募集中!
当サイトへの掲載料は無料です。 貸し倉庫 貸し工場 貸し土地 貸しビル 商業物件 事業用物件 賃貸物件 売買物件 仲介物件を募集しております。
物件資料は、FAX 06-6776-2518 又は、メールにて受付ています。 (※ポータプルサイト掲載は有料になります。)

サイト運営会社

マーシック有限会社 仲介管理
〒542-0063
大阪市中央区東平2丁目1番28号
ノバカネイチ上町台103号

TEL:06-6776-2517
受付:9:30-18:00
定休日:土日祝日