面積 △▽ 賃料 △▽ 住所 △▽ 駅 △▽ 階数 △▽ 種別 △▽ 更新 △▼
該当物件216 件<<先頭 <前のページ
次のページ> 最終>>
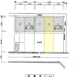
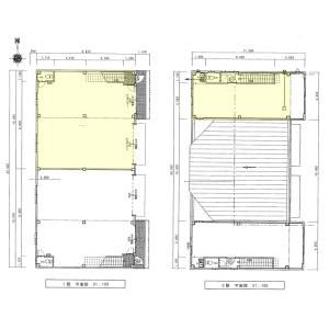
物件コード6372-13200 事務所付倉庫
| 種別 | 事務所付 駐車場付 / 準工業地域 |
|---|---|
| 面積 | 92.56 坪( 306.00 ㎡) 1階:46.28坪 2階:46.28坪 |
| 所在地 | 大阪府大阪市東住吉区杭全6丁目 JR関西本線 東部市場前 駅 徒歩 3 分 |
事務所付き倉庫 駐車スペース無料 営業所向き A室北側道路とB室(B室は25号線側) B棟 公道 南 接道幅員 28m 1Fフリースペース フォークリフト用電源、電動シャッター 2Fオフィススペース 個別空調、男女別トイレ
| 賃貸条件 (税込) | 賃料:1,276,000円 保証金:10ヶ月 解約引:3ヶ月 |
|---|
クリック→物件の詳細【更新日:
2026-02-18 】
物件コード10574-34236 事務所付倉庫 一棟貸し物件
| 種別 | リフト 事務所付 駐車場付 / 第二種中高層住居専用地域 |
|---|---|
| 面積 | 285.86 坪( 944.99 ㎡) 1階:107.99坪 2階:143.99坪 |
| 所在地 | 大阪府大阪市東住吉区湯里5丁目 近鉄南大阪線 矢田 駅 徒歩 11 分 地下鉄谷町線 喜連瓜破駅 徒歩17分 |
貨物用リフト(H1,700×W1,700×D1,900)・簡易リフト 事務所付倉庫 中2階有 現況1階117坪 2階152坪 1.2階とも分割されてます。南側部分に中2階あり
| 賃貸条件 (税込) | 賃料:1,320,000円 敷金:4ヶ月 礼金:2ヶ月 |
|---|
クリック→物件の詳細【更新日:
2026-02-18 】
物件コード9697-32800 事務所付倉庫
| 種別 | 事務所付 / 第一種住居地域 |
|---|---|
| 面積 | 274.39 坪( 907.07 ㎡) 1階:180坪 2階:94.32坪 |
| 所在地 | 大阪府大阪市淀川区三国本町1丁目 阪急電鉄宝塚線 三国 駅 徒歩 9 分 地下鉄御堂筋線 新大阪駅 徒歩14分 |
建物は全体的には2階建で、一部3階がある物件です 駐車場前面空地有り(無料)3階建の1階部分と別棟2階建の2階部分
| 賃貸条件 (税込) | 賃料:1,320,000円 敷金:4ヶ月 礼金:2ヶ月 |
|---|
クリック→物件の詳細【更新日:
2026-02-18 】
物件コード10280-33789 事務所付倉庫 一棟貸し物件
| 種別 | 事務所付 駐車場付 / 工業専用地域 |
|---|---|
| 面積 | 124.63 坪( 412.00 ㎡) |
| 所在地 | 大阪府大阪市此花区桜島3丁目 JR桜島線 桜島 駅 徒歩 15 分 |
前面道路20m ヤード527㎡ 平屋倉庫288㎡ 事務所棟124㎡ 大型車 40fトレーラー可 空地527㎡は魅力 駐車 荷捌き 敷地面積1079㎡ 便利な両面道路
| 賃貸条件 (税込) | 賃料:1,430,000円 保証金:3ヶ月 礼金:2ヶ月 |
|---|
クリック→物件の詳細【更新日:
2026-02-18 】
物件コード11534-35801 事務所付倉庫 一棟貸し物件
| 種別 | 事務所付 駐車場付 電動シャッター / 準工業地域 |
|---|---|
| 面積 | 137.77 坪( 455.44 ㎡) 1階:65.37坪 2階:72.39坪 |
| 所在地 | 大阪府大阪市城東区鴫野西5丁目 おおさか東線 鴫野 駅 徒歩 5 分 JR学研都市線 鴫野駅 徒歩5分 |
2階建て倉庫付事務所 駐車スペース付き WC男女別 1階倉庫・2階事務所に空調設備完備 新築 2025年8月完成 1階倉庫216㎡ 2階事務所239㎡ 営業所向き カメラ付インターホン・玄関扉解錠機能付(親機) 2Fオフィス OAフロア
| 賃貸条件 (税込) | 賃料:2,145,000円 保証金:10ヶ月 解約引:3ヶ月 |
|---|
クリック→物件の詳細【更新日:
2026-02-18 】
物件コード11786-36144 事務所付倉庫 一棟貸し物件
| 種別 | 事務所付 駐車場付 電動シャッター / 第二種住居地域 |
|---|---|
| 面積 | 159.27 坪( 526.50 ㎡) 1階:73.73坪 2階:85.53坪 |
| 所在地 | 大阪府吹田市南吹田1丁目 おおさか東線 南吹田 駅 徒歩 3 分 |
2階建て倉庫付事務所 駐車スペース有(前面空地)2Fオフィススペース 個別空調、OAフロア、男女別トイレ 新築物件 入居時期 2026年8月上旬(予定)鉄骨造ALC版貼 2階建
| 賃貸条件 (税込) | 賃料:2,750,000円 保証金:10ヶ月 解約引:3ヶ月 |
|---|
クリック→物件の詳細【更新日:
2026-02-18 】
物件コード11860-36284 倉庫兼工場 一棟貸し物件
| 種別 | リフト 事務所付 駐車場付 電動シャッター 工場使用可 / 準工業地域 |
|---|---|
| 面積 | 148.79 坪( 491.88 ㎡) 1階:74.39坪 2階:74.39坪 |
| 所在地 | 大阪府大阪市西成区津守1丁目 南海汐見橋線 津守 駅 徒歩 3 分 |
事務所付倉庫・工場 2階建て 各階74.39坪 電動シャッター・リフト有り・事務所スペース有り (1階245.94㎡、2階245.94㎡)車種により駐車8台可能! 前面道路幅員10m、現状渡し
| 賃貸条件 (税込) | 賃料:1,430,000円 敷金:5ヶ月 礼金:3ヶ月 |
|---|
クリック→物件の詳細【更新日:
2026-02-18 】
物件コード11666-35980 事務所付倉庫 一棟貸し物件
| 種別 | リフト 事務所付 駐車場付 電動シャッター / 第一種住居地域 |
|---|---|
| 面積 | 184.22 坪( 609.00 ㎡) 1階:56.14坪 2階:64.04坪 3階:64.04坪) |
| 所在地 | 大阪府大阪市城東区東中浜1丁目 JR学研都市線 鴫野 駅 徒歩 10 分 地下鉄中央線 緑橋駅 徒歩11分 |
3階建倉庫事務所 一棟貸 前面駐車スペース有り(普通車約5台) 人荷用EV有り積載荷重980kg 定員14名) 1F/3F倉庫 2F事務所 男女更衣室 会議室スペース トイレ男女別・給湯室
| 賃貸条件 (税込) | 賃料:1,650,000円 敷金:4ヶ月 礼金:2ヶ月 |
|---|
クリック→物件の詳細【更新日:
2026-02-18 】
物件コード11773-36120 事務所付倉庫
| 種別 | 事務所付 駐車場付 電動シャッター / 第一種住居地域 |
|---|---|
| 面積 | 9.83 坪( 32.48 ㎡) 1階:8.48坪 2階:8.1坪 |
| 所在地 | 大阪府八尾市田井中4丁目 JR関西本線 志紀 駅 徒歩 13 分 |
ガレージハウス 2階1R(事務所)+1階倉庫ガレージ 前面駐車スペースあり 敷金・礼金ゼロ キャンペーン中 エアコン1基、室内照明、シャワー室、ミニキッチン、洗面台、洗濯機置き場、電動シャッター
| 賃貸条件 (税込) | 賃料:178,001円 共益費:10,000円 敷金:無 礼金:0円 |
|---|
クリック→物件の詳細【更新日:
2026-02-17 】
物件コード11773-36121 事務所付倉庫
| 種別 | 事務所付 駐車場付 電動シャッター / 第一種住居地域 |
|---|---|
| 面積 | 9.83 坪( 32.48 ㎡) 1階:8.48坪 2階:8.1坪 |
| 所在地 | 大阪府八尾市田井中4丁目 JR関西本線 志紀 駅 徒歩 13 分 |
ガレージハウス 2階1R(事務所)+1階倉庫ガレージ 前面駐車スペースあり 敷金・礼金ゼロ キャンペーン中 エアコン1基、室内照明、シャワー室、ミニキッチン、洗面台、洗濯機置き場、電動シャッター
| 賃貸条件 (税込) | 賃料:178,001円 共益費:10,000円 敷金:無 礼金:0円 |
|---|
クリック→物件の詳細【更新日:
2026-02-17 】



