東大阪市布市町3丁目 面積114坪 賃貸事務所付倉庫物件 事務所・店舗/ 駐車場付 一棟貸し物件テナント募集

TEL:06-6776-2517受付9:30〜18:00 マーシック有限会社
2026年02月05日 07時29分 (木)

<< 前のページに戻る

物件コード 11790  -  36152

☆☆外環状線沿い ☆令和1年6月築 ☆太陽光発電システム ☆エアコン、照明 ☆荷物用エレベーター ☆電動シャッター3ヶ所
:引渡し令和8年5月頃予定 2階建て1棟貸し物件 営業所向き物件 駐車場 車庫あり
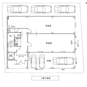
物件種別 事務所付倉庫  1棟貸し
所 在 階   1+2階
契約面積 113.95 坪( 376.70㎡)
多層階: 1階:58坪 2階:55坪
賃料 (税込)
税率 10%
賃料:880,000円     共益費込み
保証金:3,000,000円     礼金:1,500,000円
特記事項 更新料無し
特記事項
●火災保険加入要●賃貸保証会社加入要全保連 初回委託料月額支払金の1ヶ月 年間保証委託料月額支払金10%

物件概要 

   
住 所 大阪府東大阪市布市町3丁目
交 通 近鉄けいはんな線     新石切 駅   徒歩 25 分
JR学研都市線   住道駅 徒歩30分
区 分 事務所兼倉庫 (規模: 小型 )
構造規模 鉄骨造  地上 2 階建 
建築年月2019年6月 新耐震
駐車施設 有り  
本体設備   ●流し台:室内専用 ●洗面台:室内専用●トイレ:室内専用   ●空調関係:個別空調 ●セキュリティー:無
使用時間 24時間使用可 日祝日の使用:使用可
道路 角地   東19.9m/北5.4m外環状線
その他 準工業地域    
更新日 2026-02-04  取引態様:仲介

※内覧、諸条件の相談はお気軽ご連絡ください。
ご来店前には必ずご連絡をお願い申し上げます。 電話06-6776-2517 土日祝日定休   

<< 前のページに戻る

おすすめ物件

おすすめ情報

広告掲載募集中

テナント募集掲載物件募集中!
当サイトへの掲載料は無料です。 貸し倉庫 貸し工場 貸し土地 貸しビル 商業物件 事業用物件 賃貸物件 売買物件 仲介物件を募集しております。
物件資料は、FAX 06-6776-2518 又は、メールにて受付ています。 (※ポータプルサイト掲載は有料になります。)

サイト運営会社

マーシック有限会社 仲介管理
〒542-0063
大阪市中央区東平2丁目1番28号
ノバカネイチ上町台103号

TEL:06-6776-2517
受付:9:30-18:00
定休日:土日祝日