東大阪市衣摺2丁目 面積296坪 賃貸倉庫物件 衣摺2丁目 貸し倉庫/ リフト/ 駐車場付 一棟貸し物件テナント募集

TEL:06-6776-2517受付9:30〜18:00 マーシック有限会社
2026年05月13日 13時16分 (水)

<< 前のページに戻る

物件コード 11847  -  36265

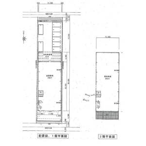
☆3階建て倉庫 リフト 電動シャッター 前面駐車スペースあって荷下ろしできます。
:2方向道路 開口部出入も 2面道路に面す(北道路と南道路)
物件種別 倉庫  1棟貸し
所 在 階   1+2+3階
契約面積 296.07 坪( 978.76㎡)
多層階: 1階:87.35坪 2階:104.36坪 3階:104.36坪
賃料 (税込)
税率 10%
賃料:1,650,000円     共益費込み
敷金:2.0ヶ月     礼金:2ヶ月
特記事項 更新料無し 引渡日:令和 8年 4月
特記事項
●火災保険加入要●賃貸保証会社加入要

物件概要  写真B

   
住 所 大阪府東大阪市衣摺2丁目
交 通 おおさか東線     衣摺加美北 駅   徒歩 10 分
おおさか東線   JR長瀬駅 徒歩12分
区 分 倉庫 (規模: 大型 )
構造規模 鉄骨造  地上 3 階建 
建築年月2007年7月 新耐震
駐車施設 有り  
本体設備   ●洗面台:室内専用●トイレ:室内専用   ●セキュリティー:無
使用時間 24時間使用可 日祝日の使用:使用可
道路 一方  
その他 準工業地域    
更新日 2026-05-11  取引態様:仲介

※内覧、諸条件の相談はお気軽ご連絡ください。
ご来店前には必ずご連絡をお願い申し上げます。 電話06-6776-2517 土日祝日定休   

<< 前のページに戻る

おすすめ物件

おすすめ情報

広告掲載募集中

テナント募集掲載物件募集中!
当サイトへの掲載料は無料です。 貸し倉庫 貸し工場 貸し土地 貸しビル 商業物件 事業用物件 賃貸物件 売買物件 仲介物件を募集しております。
物件資料は、FAX 06-6776-2518 又は、メールにて受付ています。 (※ポータプルサイト掲載は有料になります。)

サイト運営会社

マーシック有限会社 仲介管理
〒542-0063
大阪市中央区東平2丁目1番28号
ノバカネイチ上町台103号

TEL:06-6776-2517
受付:9:30-18:00
定休日:土日祝日