大阪市淀川区加島4丁目 面積121坪 賃貸事務所付倉庫物件 加島4丁目貸倉庫/ 駐車場付 一棟貸し物件テナント募集

TEL:06-6776-2517受付9:30〜18:00 マーシック有限会社
2026年04月13日 18時59分 (月)

<< 前のページに戻る

物件コード 11906  -  36344

☆2階建て事務所付倉庫作業所 クレーン2基(天井高4.5m)シャッターH3.9m×W4.3m
:専用通路スペース 駐車可能
物件種別 事務所付倉庫  1棟貸し
所 在 階   1+2階
契約面積 121.30 坪( 401.00㎡)
賃料 (税込)
税率 10%
賃料:770,000円     共益費込み
敷金:2.0ヶ月     礼金:2ヶ月
特記事項 更新料無し
現況・引渡日
現状渡し 現況:空室
特記事項
●火災保険加入要別途見積可●賃貸保証会社加入要・k-net㈱ (初回100% 年間更新料10%)

物件概要  写真B

   
住 所 大阪府大阪市淀川区加島4丁目
交 通 JR東西線     加島 駅   徒歩 8 分
区 分 事務所兼倉庫 (規模: 中型 )
構造規模 鉄骨造  地上 2 階建 
建築年月1993年4月 新耐震
駐車施設 有り  
本体設備   ●流し台:室内専用 ●洗面台:室内専用●トイレ:室内専用   ●セキュリティー:無
使用時間 24時間使用可 日祝日の使用:使用可
道路 一方   4m
その他 第一種住居地域    
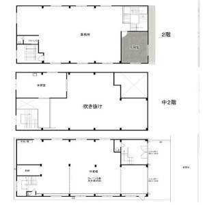
備考・1階175.50㎡(53.08坪)・中2階50.00㎡(15.12坪)・2階175.50㎡(53.08坪) ※現状有姿にて引き渡し ※設備関係貸主保証無(エアコン・トイレ・浴室・手洗い場・瞬間湯沸かし器・照明 器具等) ※クレーン2基有 (貸主保証無) 解約違約金:2年以内(1ヶ月分)・1年以内(2ヶ月分) 電気:100V有 ※200V 別途契約者様にて申請必須 ※プロパンガス
更新日 2026-04-13  取引態様:仲介

※内覧、諸条件の相談はお気軽ご連絡ください。
ご来店前には必ずご連絡をお願い申し上げます。 電話06-6776-2517 土日祝日定休   

<< 前のページに戻る

おすすめ物件

おすすめ情報

広告掲載募集中

テナント募集掲載物件募集中!
当サイトへの掲載料は無料です。 貸し倉庫 貸し工場 貸し土地 貸しビル 商業物件 事業用物件 賃貸物件 売買物件 仲介物件を募集しております。
物件資料は、FAX 06-6776-2518 又は、メールにて受付ています。 (※ポータプルサイト掲載は有料になります。)

サイト運営会社

マーシック有限会社 仲介管理
〒542-0063
大阪市中央区東平2丁目1番28号
ノバカネイチ上町台103号

TEL:06-6776-2517
受付:9:30-18:00
定休日:土日祝日