大阪市北区梅田2丁目 面積27坪 賃貸事務所物件 千代田ビル西館テナント募集

TEL:06-6776-2517受付9:30〜18:00 マーシック有限会社
2026年05月13日 13時54分 (水)

<< 前のページに戻る

物件コード 3089  -  6815

☆あらゆる商業施設が集積し、先端を行く企業を引き入れビジネス街として注目を集める西梅田エリアに立地。国道2号線に面したロケーション
物件種別 事務所  建物一部
所 在 階 4階   GH号
契約面積 26.54 坪( 87.74㎡)
賃料 (税込)
税率 10%
お問合せ下さい    
   
特記事項 更新料無し

物件概要 写真A

   
住 所 大阪府大阪市北区梅田2丁目
交 通 地下鉄四つ橋線     西梅田 駅   徒歩 3 分
JR東西線   北新地駅 徒歩3分
JR大阪環状線   大阪駅 徒歩6分
区 分 貸ビル (規模: 中型 )
構造規模 SRC造  地上 10 階建  /地下1階
建築年月1971年9月 新耐震
駐車施設 近隣確保  
本体設備 乗用EV:2基   ●流し台:共同 (電気温水器) ●洗面台:男女別●トイレ:男女別   ●空調関係:個別空調 ●セキュリティー:機械警備
使用時間 24時間使用可 日祝日の使用:使用可
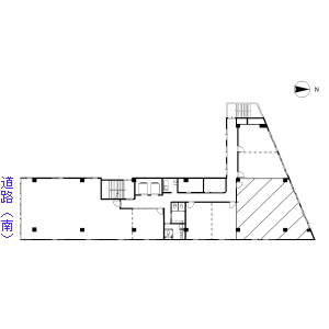
道路 一方   国道2号線(南) 大通り
その他  光ケーブル 商業地域   基準階:天井高2.35m 基準階床:タイルカーペット OAフロア対応可  
備考JR大阪駅 徒歩6分 JR東西線北新地駅・地下鉄西梅田駅 C-49 出口 徒歩3分
更新日 2026-02-26  取引態様:仲介

※内覧、諸条件の相談はお気軽ご連絡ください。
ご来店前には必ずご連絡をお願い申し上げます。 電話06-6776-2517 土日祝日定休   

<< 前のページに戻る

おすすめ物件

おすすめ情報

広告掲載募集中

テナント募集掲載物件募集中!
当サイトへの掲載料は無料です。 貸し倉庫 貸し工場 貸し土地 貸しビル 商業物件 事業用物件 賃貸物件 売買物件 仲介物件を募集しております。
物件資料は、FAX 06-6776-2518 又は、メールにて受付ています。 (※ポータプルサイト掲載は有料になります。)

サイト運営会社

マーシック有限会社 仲介管理
〒542-0063
大阪市中央区東平2丁目1番28号
ノバカネイチ上町台103号

TEL:06-6776-2517
受付:9:30-18:00
定休日:土日祝日