大阪市鶴見区今津北1丁目 面積145坪 賃貸倉庫兼工場物件 鶴見区今津北倉庫・工場A/ 駐車場付テナント募集

TEL:06-6776-2517受付9:30〜18:00 マーシック有限会社
2026年05月27日 03時59分 (水)

<< 前のページに戻る

物件コード 11723  -  36050

☆大型車通行可能/工場使用可能
:鶴見区今津北倉庫・工場A
物件種別 倉庫兼工場  《連棟式》 建物一部
所 在 階   1+2階 A
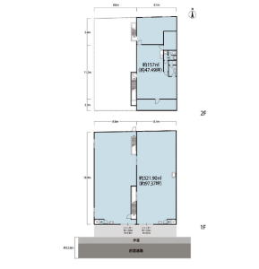
契約面積 144.87 坪( 478.90㎡)
多層階: 1階:97.37坪 2階:47.49坪
賃料 (税込)
税率 10%
賃料:850,000円     共益費込み
敷金:2.0ヶ月     礼金:2ヶ月
特記事項 更新料無し
現況・引渡日
現状渡し 現況:空室
特記事項
●火災保険加入要●賃貸保証会社加入要

物件概要  写真B

   
住 所 大阪府大阪市鶴見区今津北1丁目
交 通 おおさか東線     放出 駅   徒歩 15 分
区 分 倉庫・工場 (規模: 小型 )
構造規模 鉄骨造  地上 2 階建 
建築年月1985年 新耐震
駐車施設 有り  
本体設備   ●流し台:室内専用 ●洗面台:室内専用●トイレ:室内専用   ●セキュリティー:無
使用時間 24時間使用可 日祝日の使用:使用可
道路 一方   南12m 接道接面 16.9m ●阪神高速13号東大阪線 高井田
その他 準工業地域    
備考建物面積1F 321.90㎡・2F 157.00㎡ 鉄骨造スレート葺平家建 床と内外壁塗装完了/トイレ新調/火災保険加入要/上水、下水、電気(動力無し)、ガス引き込みなし/消防設備無し(借主負担)/現状有姿/設備の維持、メンテナンスは借主負担/2階部分は増築未登記となり、実測面積となります。大型車通行可能/工場使用可能 2年以内の解約は短期解約違約金1ヶ月
更新日 2026-05-26  取引態様:仲介

※内覧、諸条件の相談はお気軽ご連絡ください。
ご来店前には必ずご連絡をお願い申し上げます。 電話06-6776-2517 土日祝日定休   

<< 前のページに戻る

おすすめ物件

おすすめ情報

広告掲載募集中

テナント募集掲載物件募集中!
当サイトへの掲載料は無料です。 貸し倉庫 貸し工場 貸し土地 貸しビル 商業物件 事業用物件 賃貸物件 売買物件 仲介物件を募集しております。
物件資料は、FAX 06-6776-2518 又は、メールにて受付ています。 (※ポータプルサイト掲載は有料になります。)

サイト運営会社

マーシック有限会社 仲介管理
〒542-0063
大阪市中央区東平2丁目1番28号
ノバカネイチ上町台103号

TEL:06-6776-2517
受付:9:30-18:00
定休日:土日祝日