面積 △▽ 賃料 △▽ 住所 △▼ 駅 △▽ 階数 △▽ 種別 △▽ 更新 △▽
該当物件175 件<<先頭 <前のページ
次のページ> 最終>>
物件コード11534-35801 事務所付倉庫 一棟貸し物件
| 種別 | 事務所付 駐車場付 電動シャッター / 準工業地域 |
|---|---|
| 面積 | 137.77 坪( 455.44 ㎡) 1階:65.37坪 2階:72.39坪 |
| 所在地 | 大阪府大阪市城東区鴫野西5丁目 おおさか東線 鴫野 駅 徒歩 5 分 JR学研都市線 鴫野駅 徒歩5分 |
2階建て倉庫付事務所 駐車スペース付き WC男女別 1階倉庫・2階事務所に空調設備完備 新築 2025年8月完成 1階倉庫216㎡ 2階事務所239㎡ 営業所向き カメラ付インターホン・玄関扉解錠機能付(親機) 2Fオフィス OAフロア
| 賃貸条件 (税込) | 賃料:2,145,000円 保証金:10ヶ月 解約引:3ヶ月 |
|---|
クリック→物件の詳細【更新日:
2026-03-04 】
物件コード10328-33851 倉庫兼工場 一棟貸し物件
| 種別 | 事務所付 駐車場付 工場使用可 / 準工業地域 |
|---|---|
| 面積 | 89.47 坪( 295.78 ㎡) 1階:65.64坪 2階:23.83坪 |
| 所在地 | 大阪府大阪市城東区鴫野西3丁目 JR学研都市線 京橋 駅 徒歩 8 分 |
天高5.5m 1階倉庫作業所 2階事務所 前面駐車可駐車場3台分 電気,動力電源,上水道,トイレ専用,エアコン
| 賃貸条件 (税込) | 賃料:597,300円 保証金:2ヶ月 礼金:2ヶ月 |
|---|
クリック→物件の詳細【更新日:
2026-05-07 】
物件コード11831-36216 倉庫 一棟貸し物件
| 種別 | クレーン 事務所付 駐車場付 / 準工業地域 |
|---|---|
| 面積 | 363.70 坪( 1,202.31 ㎡) 1階:191.23坪 2階:172.46坪 |
| 所在地 | 大阪府摂津市鳥飼本町2丁目 大阪モノレール 摂津 駅 徒歩 25 分 |
ロードサイド 2階建て貸倉庫・営業所に適す 倉庫前駐車スペースあり複数台駐車可 2トンクレーン 使用用途・諸条件相談
| 賃貸条件 (税込) | 賃料:1,210,000円 敷金:3ヶ月 礼金:1ヶ月 |
|---|
クリック→物件の詳細【更新日:
2026-01-16 】
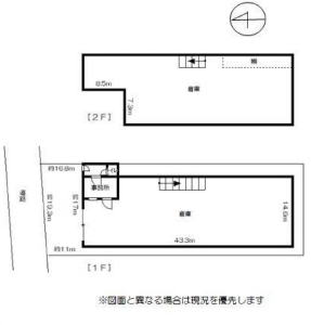
物件コード11750-36082 事務所付倉庫
| 種別 | 事務所付 駐車場付 電動シャッター / 近隣商業地域 |
|---|---|
| 面積 | 18.92 坪( 62.56 ㎡) 1階:9.25坪 2階:9.68坪 |
| 所在地 | 大阪府摂津市鳥飼本町1丁目 大阪モノレール 南摂津 駅 徒歩 9 分 |
新築ガレージハウス2階建て SOHO・倉庫・事務所・住居使用可 鳥飼仁和寺大橋近く、府道16号線沿い 1階電動シャッター付フリースペース ・2階事務所(ロフト・バルコニー・屋上付)●前面空地駐車可
| 賃貸条件 (税込) | 賃料:165,000円 敷金:0円 礼金:2ヶ月 |
|---|
クリック→物件の詳細【更新日:
2026-01-16 】
物件コード11156-35189 倉庫 一棟貸し物件
| 種別 | リフト 事務所付 駐車場付 / 準工業地域 |
|---|---|
| 面積 | 199.49 坪( 659.47 ㎡) 1階:99.3坪 2階:100.19坪 |
| 所在地 | 大阪府摂津市鳥飼中3丁目 駅 徒歩 分 |
現況は冷凍冷蔵倉庫 2階建て倉庫 事務所スペースあり 冷凍冷蔵設備・リフトは性能保証無し(残地設備扱い) 前面駐車スペース
| 賃貸条件 (税込) | 賃料:1,430,000円 保証金:6,500,000円 解約引:スライド |
|---|
クリック→物件の詳細【更新日:
2026-01-30 】
物件コード11746-36076 事務所付倉庫 一棟貸し物件
| 種別 | 事務所付 駐車場付 電動シャッター / 準工業地域 |
|---|---|
| 面積 | 189.49 坪( 626.40 ㎡) 1階:94.74坪 2階:94.74坪 |
| 所在地 | 兵庫県神戸市東灘区魚崎南町3丁目 阪神電鉄本線 魚崎 駅 徒歩 10 分 神戸新交通六甲アイランド線 魚崎駅 徒歩12分 |
2階建て倉庫付事務所 前面駐車スペース付き 2Fオフィススペース 個別空調、OAフロア、男女別トイレ 建築中 時期渡し2026年6月上旬(予定)
| 賃貸条件 (税込) | 賃料:3,025,000円 保証金:10ヶ月 解約引:3ヶ月 |
|---|
クリック→物件の詳細【更新日:
2026-03-04 】
物件コード11877-36307 事務所付倉庫
| 種別 | 事務所付 駐車場付 電動シャッター |
|---|---|
| 面積 | 10.89 坪( 36.00 ㎡) 1階:0坪 2階:0坪 |
| 所在地 | 大阪府八尾市高砂町2丁目 近鉄大阪線 近鉄八尾 駅 徒歩 3.0km 分 近鉄難波・奈良線 若江岩田駅 徒歩29分 |
屋外駐車場込!!事務所兼倉庫に最適!!設備、電気、工務店様、個人事業主様にもおすすめ。 1Fの大型物置にたくさん荷物を入れたい方など、使い方は自由。 断熱加工、エアコン完備。 屋外P2台(普+軽)付き 1F ガレージ・物置 電動シャッター 2F LEDトップライト 換気扇 ウォシュレットトイレ エアコン
| 賃貸条件 (税込) | 賃料:110,000円 共益費:5,500円 敷金:1ヶ月 礼金:1ヶ月 |
|---|
クリック→物件の詳細【更新日:
2026-03-11 】
物件コード11877-36308 事務所付倉庫
| 種別 | 事務所付 駐車場付 電動シャッター |
|---|---|
| 面積 | 10.89 坪( 36.00 ㎡) 1階:0坪 2階:0坪 |
| 所在地 | 大阪府八尾市高砂町2丁目 近鉄大阪線 近鉄八尾 駅 徒歩 3.0km 分 近鉄難波・奈良線 若江岩田駅 徒歩29分 |
屋外駐車場込!!事務所兼倉庫に最適!!設備、電気、工務店様、個人事業主様にもおすすめ。 1Fの大型物置にたくさん荷物を入れたい方など、使い方は自由。 断熱加工、エアコン完備。 屋外P1台付き 1F ガレージ・物置 電動シャッター 2F LEDトップライト 換気扇 ウォシュレットトイレ エアコン
| 賃貸条件 (税込) | 賃料:106,435円 共益費:5,500円 敷金:1ヶ月 礼金:1ヶ月 |
|---|
クリック→物件の詳細【更新日:
2026-03-11 】
物件コード11877-36309 事務所付倉庫
| 種別 | 事務所付 駐車場付 電動シャッター |
|---|---|
| 面積 | 9.38 坪( 31.00 ㎡) 1階:0坪 2階:0坪 |
| 所在地 | 大阪府八尾市高砂町2丁目 近鉄大阪線 近鉄八尾 駅 徒歩 3.0km 分 近鉄難波・奈良線 若江岩田駅 徒歩29分 |
屋外駐車場込!!事務所兼倉庫に最適!!設備、電気、工務店様、個人事業主様にもおすすめ。 1Fの大型物置にたくさん荷物を入れたい方など、使い方は自由。 断熱加工、エアコン完備。 屋外P1台 (1F車入りません)1F ガレージ・物置 電動シャッター 2F LEDトップライト 換気扇 ウォシュレットトイレ エアコン
| 賃貸条件 (税込) | 賃料:88,000円 共益費:5,500円 敷金:1ヶ月 礼金:1ヶ月 |
|---|
クリック→物件の詳細【更新日:
2026-03-11 】
物件コード11877-36310 事務所付倉庫
| 種別 | 事務所付 駐車場付 電動シャッター |
|---|---|
| 面積 | 10.59 坪( 35.00 ㎡) 1階:0坪 2階:0坪 |
| 所在地 | 大阪府八尾市高砂町2丁目 近鉄大阪線 近鉄八尾 駅 徒歩 3.0km 分 近鉄難波・奈良線 若江岩田駅 徒歩29分 |
屋外駐車場込!!事務所兼倉庫に最適!!設備、電気、工務店様、個人事業主様にもおすすめ。 1Fの大型物置にたくさん荷物を入れたい方など、使い方は自由。 断熱加工、エアコン完備。 屋外P1台 (1F車入りません)1F ガレージ・物置 電動シャッター 2F LEDトップライト 換気扇 ウォシュレットトイレ エアコン
| 賃貸条件 (税込) | 賃料:99,000円 共益費:5,500円 敷金:1ヶ月 礼金:1ヶ月 |
|---|
クリック→物件の詳細【更新日:
2026-03-11 】



