面積 △▽ 賃料 △▽ 住所 △▽ 駅 △▽ 階数 ▲▽ 種別 △▽ 更新 △▽
該当物件62 件<<先頭 <前のページ
1 2 3 4 5 6 7
次のページ> 最終>>
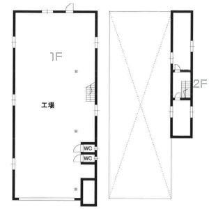
物件コード11393-35568 倉庫兼工場
| 種別 | クレーン 事務所付 駐車場付 電動シャッター 工場使用可 |
|---|---|
| 面積 | 53.64 坪( 177.31 ㎡) 1階:47.49坪 2階:5.99坪 |
| 所在地 | 大阪府大阪市此花区島屋3丁目 JR桜島線 安治川口 駅 徒歩 4 分 |
電動シャッター ■クレーン(残置物)有 ■シヤッター高さ約4.2m 2階事務所スペースあり 周辺民家あり 1階工場・倉庫+2階事務所 1階 157㎡・ 2階 19.79㎡ ホイストクレーン2t(残置)工場使用可
| 賃貸条件 | 賃料:賃料:381,819円 敷金:2ヶ月 礼金:2ヶ月 |
|---|
※クリック→物件の詳細【更新日:2025-12-04】
物件コード11838-36227 工場 一棟貸し物件
| 種別 | 事務所付 駐車場付 電動シャッター 工場使用可 / 準工業地域 |
|---|---|
| 面積 | 119.81 坪( 396.07 ㎡) 1階:100坪 2階:20坪 |
| 所在地 | 大阪府八尾市南木の本8丁目 地下鉄谷町線 八尾南 駅 徒歩 13 分 |
準工業地域 貸工場 1階/100坪 2階/20坪 建物前面駐車場あり 1階 工場倉庫に 2階事務所に 引渡時期 2026年7月上旬
| 賃貸条件 (税込) | 賃料:550,000円 保証金:6ヶ月 解約引:2ヶ月 |
|---|
※クリック→物件の詳細【更新日:2026-01-27】
物件コード10527-34170 倉庫兼工場 一棟貸し物件
| 種別 | 駐車場付 電動シャッター 工場使用可 / 工業地域 |
|---|---|
| 面積 | 20.90 坪( 69.09 ㎡) |
| 所在地 | 大阪府大阪市平野区加美北3丁目 地下鉄千日前線 南巽 駅 徒歩 6 分 |
電動シャッター W3.49mH3.45 前面に駐車スペース付き 間口4.7m 奥行14.7m エアコン・キュービクル等 前面駐車スペース付き 動力、エアコン、電動シャッター(W3490mm・H3450mm)
| 賃貸条件 (税込) | 賃料:253,000円 保証金:0円 礼金:660,000円 |
|---|
※クリック→物件の詳細【更新日:2026-02-02】
物件コード11525-35792 工場 一棟貸し物件
| 種別 | クレーン リフト 事務所付 電動シャッター 工場使用可 / 準工業地域 |
|---|---|
| 面積 | 461.31 坪( 1,525.00 ㎡) 1階:185坪 2階:16坪 3階:147坪) |
| 所在地 | 大阪府東大阪市楠根2丁目 地下鉄中央線 長田 駅 徒歩 15 分 近鉄けいはんな線 長田駅 徒歩15分 |
大型貸工場4階建て 電動シャッター、シートシャッターの開口2ヶ所、搬出入が便利 ☆ 1階2t2基・1t、3階・4階500kgクレーン付き ☆ リフト付き(要動力契約) 4階建て事務所付工場 1階・2階吹き抜け 天井高あり 1階 2tクレーン2基、1tクレーン1基。3階・4階に500kgクレーン各1基
| 賃貸条件 (税込) | 賃料:2,090,000円 保証金:5,000,000円 解約引:2,750,000円 |
|---|
※クリック→物件の詳細【更新日:2026-01-07】
物件コード11569-35847 倉庫兼工場 一棟貸し物件
| 種別 | 事務所付 駐車場付 工場使用可 / 準工業地域 |
|---|---|
| 面積 | 64.92 坪( 214.60 ㎡) |
| 所在地 | 大阪府大阪市西成区中開3丁目 JR大阪環状線 今宮 駅 徒歩 10 分 |
事務所付倉庫工場 駐車場前面3台分
| 賃貸条件 (税込) | 賃料:550,000円 保証金:4ヶ月 礼金:1ヶ月 |
|---|
※クリック→物件の詳細【更新日:2025-11-28】
物件コード11748-36078 工場 一棟貸し物件
| 種別 | クレーン 事務所付 駐車場付 工場使用可 |
|---|---|
| 面積 | 29.95 坪( 99.00 ㎡) |
| 所在地 | 大阪府門真市ひえ島町 地下鉄長堀鶴見緑地線 門真南 駅 徒歩 8 分 地下鉄長堀鶴見緑地線 鶴見緑地駅 徒歩18分 |
天井クレ-ン、事務所 トイレ専用 中央環状線沿いで深夜作業可能 3台駐車場 1台13000円
| 賃貸条件 (税込) | 賃料:250,000円 保証金:600,000円 償却:2ヶ月 |
|---|
※クリック→物件の詳細【更新日:2025-12-11】
物件コード9482-32410 工場
| 種別 | 工場使用可 / 工業地域 |
|---|---|
| 面積 | 50.00 坪( 165.28 ㎡) |
| 所在地 | 大阪府八尾市福栄町2丁目 近鉄信貴線 河内山本 駅 徒歩 25 分 |
工場仕様 進入路は共有路になります。(2トン車まで) 現状有姿 天井⾼し 中二階撤去 諸条件相談可能 ⼯業地域
| 賃貸条件 (税込) | 賃料:250,000円 敷金:1ヶ月 礼金:2ヶ月 |
|---|
※クリック→物件の詳細【更新日:2026-01-21】
物件コード9873-33150 倉庫兼工場
| 種別 | クレーン リフト 工場使用可 / 準工業地域 |
|---|---|
| 面積 | 78.55 坪( 259.68 ㎡) |
| 所在地 | 大阪府大阪市浪速区木津川1丁目 地下鉄長堀鶴見緑地線 大正 駅 徒歩 7 分 JR大阪環状線 大正駅 徒歩7分 |
入口共用部分は約15坪 クレーンも入口まで走行します。 2.8トン クレーン下6m 床下高8m 6階建ての1階部分募集 トイレ・厨房は共同使用
| 賃貸条件 (税込) | 賃料:864,001円 共益費:12,000円 保証金:2,828,000円 解約引:1,100,000円 |
|---|
※クリック→物件の詳細【更新日:2025-12-23】
物件コード10366-33917 倉庫兼工場 一棟貸し物件
| 種別 | クレーン 事務所付 駐車場付 工場使用可 / 第一種住居地域 |
|---|---|
| 面積 | 216.85 坪( 716.87 ㎡) |
| 所在地 | 大阪府寝屋川市宇谷町 JR学研都市線 寝屋川公園 駅 徒歩 26 分 |
大型物件 貸工場 716㎡ 敷地946㎡ ホイストクレーン1トン 天井梁下3.2m 2階建て事務所棟各階28㎡ 倉庫内トラックヤード(3×5m)倉庫床面と段差(約50cm)あり
| 賃貸条件 (税込) | 賃料:1,177,000円 保証金:6,000,000円 解約引:相談 |
|---|
※クリック→物件の詳細【更新日:2026-01-06】
物件コード10583-34253 工場
| 種別 | クレーン 電動シャッター 工場使用可 / 準工業地域 |
|---|---|
| 面積 | 44.07 坪( 145.70 ㎡) |
| 所在地 | 大阪府東大阪市長田西5丁目 近鉄けいはんな線 長田 駅 徒歩 14 分 地下鉄中央線 長田駅 徒歩14分 |
貸工場 2t走行クレーン 梁下4.6m 電動シャッターH3m×W2.2m 1階部分のみ賃貸の場合 貸工場44坪 2t走行クレーン 梁下4.6m 電動シャッターH3m×W2.2m
| 賃貸条件 (税込) | 賃料:330,000円 敷金:4ヶ月 礼金:2ヶ月 |
|---|
※クリック→物件の詳細【更新日:2025-12-23】



